ファミールハイツ泉大津セントハーバーシティ4号棟/980万円

販売価格:980万円

2026年3月上旬リフォーム完了済!

交通 南海本線泉大津駅徒歩13分
間取り 2SLDK
築年月 1997年3月

POINT

■海が見えるマンション10階
■リフォーム済即入居可
■月々2万円台~購入◎


*周辺商業施設充実しており生活便利
*当日内覧ご予約可能です!


—–□■リフォーム内容■□—–
キッチン・トイレ・浴室・洗面台交換・床・クロス張替・畳・襖張替・クリーニング他

 


◆土地探し・家作り相談なら富士創◆
当社は中古+リノベーションにて「あなたのこんな所に住みたい」を実現する会社です。
周辺のリノベに適した物件もご紹介可能です♪
◎住宅ローンの提案に自信があります!
車のローン、ショッピングローン、カードローンなどを住宅ローンで一本化!
さらに住宅購入諸費用、家具家電購入費、引越し費用なども住宅ローンで一本化!
専門のスタッフがおまとめローンをわかりやすく説明します。

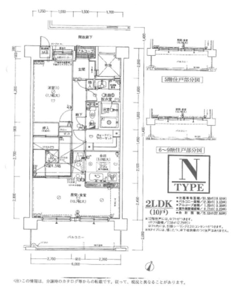
平面図

専有面積 61.56㎡
バルコニー 12㎡

アクセス

周辺環境

  • 泉大津市立浜小学校(1100m)
  • いずみおおつシティ(1100m)
  • ファミリーマートなぎさ町店(45m)

CONTACT

住まいに関するご相談・ご質問など、
お気軽にお問合せください

フリーダイヤル 0120-243-358

受付時間:9:00~18:00
定休日:水曜日